施工事例
- 物件No.141
- マンションリフォーム
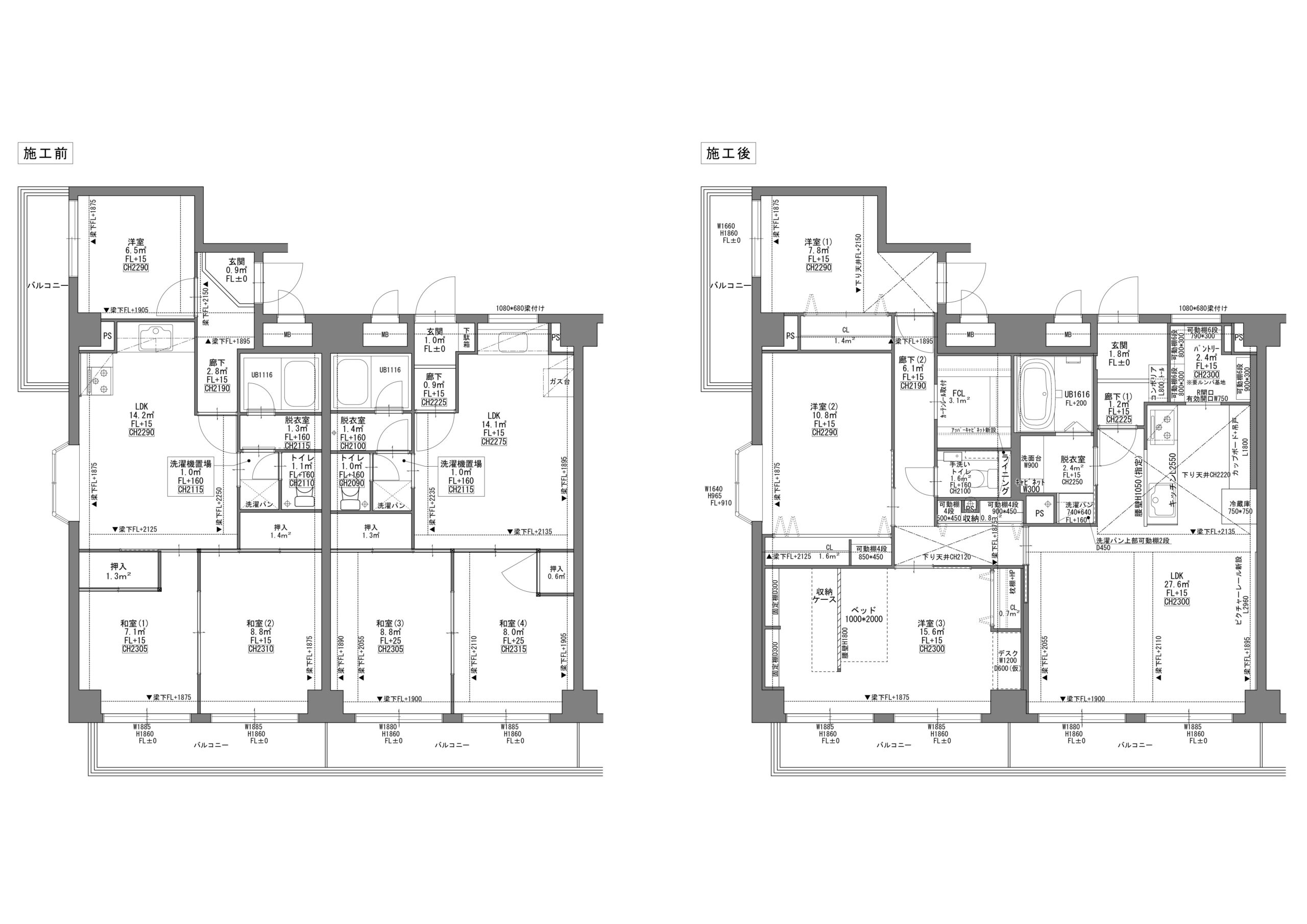
マンション2戸分を合併してフルリノベーション(東住吉区/K様)

ご家族が所有されるマンションにおいて、2区画にわたってフルスケルトンのリノベーションを行いました。

【お客様のご要望】
- 手狭なので隣り合う2区画を合併したい。
- フルスケルトンで間取りから検討し直したい。
- 内窓を新設したい。
【弊社の取り組み】
「手狭なので隣り合う2区画を合併したい」
ご家族の所有されるマンションにお住まいでしたが、手狭に感じられるとの事で今回隣り合った区画を室内で行き来できるようにしています。
今回の建物については区画間の壁は躯体ではなかったため、建物の強度については問題なく工事を行う事ができました。
「フルスケルトンで間取りから検討し直したい」
今回は、大まかにお施主様ご希望の間取りをご検討されていましので、それをもとに施工が難しい場所、おすすめの間取りや代替案などを交えながら打合せをいたしました。
・広いリビング
・ご家族それぞれのお部屋をつくる
・十分な収納
主にこのようなポイントが軸となり、間取りの決定に至りました。
「内窓を新設したい」
2区画を連結したことと、そのうち一部屋が角部屋であることから窓が多い事もあり、断熱と防音の観点から内窓の取付をご希望いただきました。
施工後、真夏に再度入居されたお施主様からは、こんなに暑さが変わるならもっと早くリフォームすればよかったです。とのお声を頂戴いたしました。
先進的窓リノベと子育てグリーン住宅支援事業の両方を利用することができましたので、そちらについてもお喜び頂けました。
【工事内容】
- 解体工事
- 内装工事
- 電気設備工事
- 給排水設備工事
- 美装工事
それではビフォーアフターの写真をご紹介します。
洗面室
- BEFORE

- AFTER

・床:クッションフロア仕上
・壁,天井:クロス仕上
・洗面台:交換
・可動棚新設
・洗濯パン交換
洋室(3)
- BEFORE

- AFTER

・床:フローリング仕上げ
・壁,天井:クロス仕上
・固定棚新設
・照明器具新設
洗面室
- BEFORE

- AFTER

・床:クッションフロア仕上
・壁,天井:クロス仕上
・洗面台:交換
・可動棚新設
・洗濯パン交換
洋室(1)
- BEFORE

- AFTER

・床:フローリング仕上げ
・壁,天井:クロス仕上
・クローゼット造作
・照明器具新設
ユニットバス
- BEFORE

- AFTER

・ユニットバス交換
洋室(3)
- BEFORE

- AFTER

・床:フローリング仕上げ
・壁,天井:クロス仕上
・照明器具新設
・内窓新設
洋室(2)
- BEFORE

- AFTER

・床:フローリング仕上げ
・壁,天井:クロス仕上
・照明器具新設
・内窓新設
・クローゼット造作
洋室(3)
- BEFORE

- AFTER

・床:フローリング仕上げ
・壁,天井:クロス仕上
・照明器具新設
・クローゼット造作
トイレ
- BEFORE

- AFTER

・床:クッションフロア仕上
・壁,天井:クロス仕上
・トイレ交換
・吊戸新設
・手洗い器新設
LDK
- BEFORE

- AFTER

・床:フローリング仕上げ
・壁,天井:クロス仕上
・照明器具新設
・内窓新設
・キッチン交換
玄関
- BEFORE

- AFTER

・床:フローリング仕上げ
・壁,天井:クロス仕上
・照明器具新設
・下駄箱新設
LDK
- BEFORE

- AFTER

・床:フローリング仕上げ
・壁,天井:クロス仕上
・照明器具新設
・内窓新設
・キッチン交換
LDK
- BEFORE

- AFTER

・床:フローリング仕上げ
・壁,天井:クロス仕上
・照明器具新設
・内窓新設
・キッチン交換
