施工事例
- 物件No.142
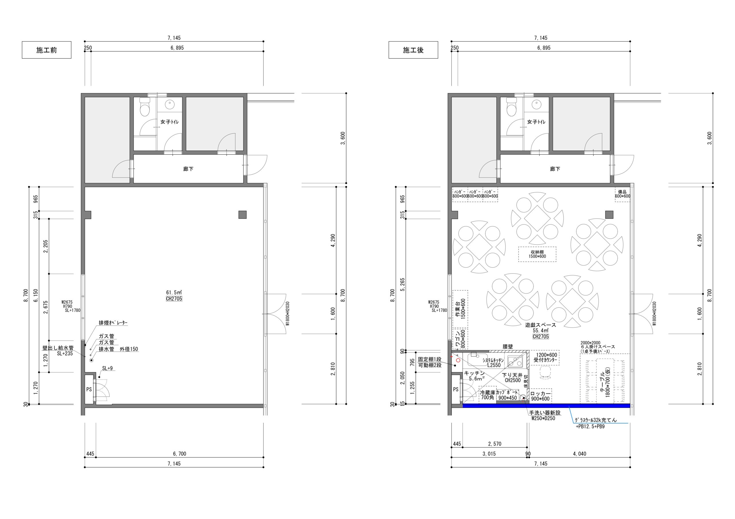
- 店舗内装工事
健康麻雀の内装工事(滋賀県/T様)

今回は健康麻雀を新しく開店されるにあたって、テナントの内装改修工事を承りました。

【お客様のご要望】
- 厨房を作りたい
- 防音対策をしたい
- 意匠について相談したい
【弊社の取り組み】
「厨房を作りたい」
キッチンを新しく作って軽食を提供したいとのご要望がありましたので、配管との兼ね合いなをどを考慮しレイアウトを検討いたしました。
「防音対策をしたい」
言語学習にまつわる店舗に隣接しているため、迷惑がかからないように念のため防音対策を行っておきたいというご要望を頂戴いたしました。
隣のテナントに接した壁に、密度の高いグラスウールを充てんした上で石こうボードを2重貼りにするなど防音対策を施しています。
「意匠について相談したい」
今回は”落ち着きのあるカフェのような雰囲気”という指針がありましたので、それにならっていくつか壁紙の候補を挙げていただきました。
それを参考にCGイメージ図を数パターン作成し、お施主様の理想を形にできるように打ち合わせを重ねました。
【工事内容】
- 内装工事
- 電気設備工事
- 給排水設備工事
- 美装工事
それではビフォーアフターの写真をご紹介します。
遊戯スペース
- BEFORE

- AFTER

床:塩ビタイル仕上
壁:クロス仕上
天井:クロス仕上
照明器具新設
天カセ新設
遊戯スペース
- BEFORE

- AFTER

床:塩ビタイル仕上
壁:クロス仕上
天井:クロス仕上
遊戯スペース
- BEFORE

- AFTER

床:塩ビタイル仕上
壁:クロス仕上
天井:クロス仕上
外観
- BEFORE

- AFTER

インクジェットシート貼(店名ロゴ)
ガラスフィルム貼(目隠し)
